I Link Digital Office Campus
Studio name: Dustudio and Bayhauz Design Studio
Principal Designer: Dharmesh Jadeja, Heval Dhudshia, Anant Mairal
Execution team: Bayhauz
Design team: Aditya Rathod, Srehari Jekka, Nimisha Agarwal
Location: Trichy, Tamil Nadu
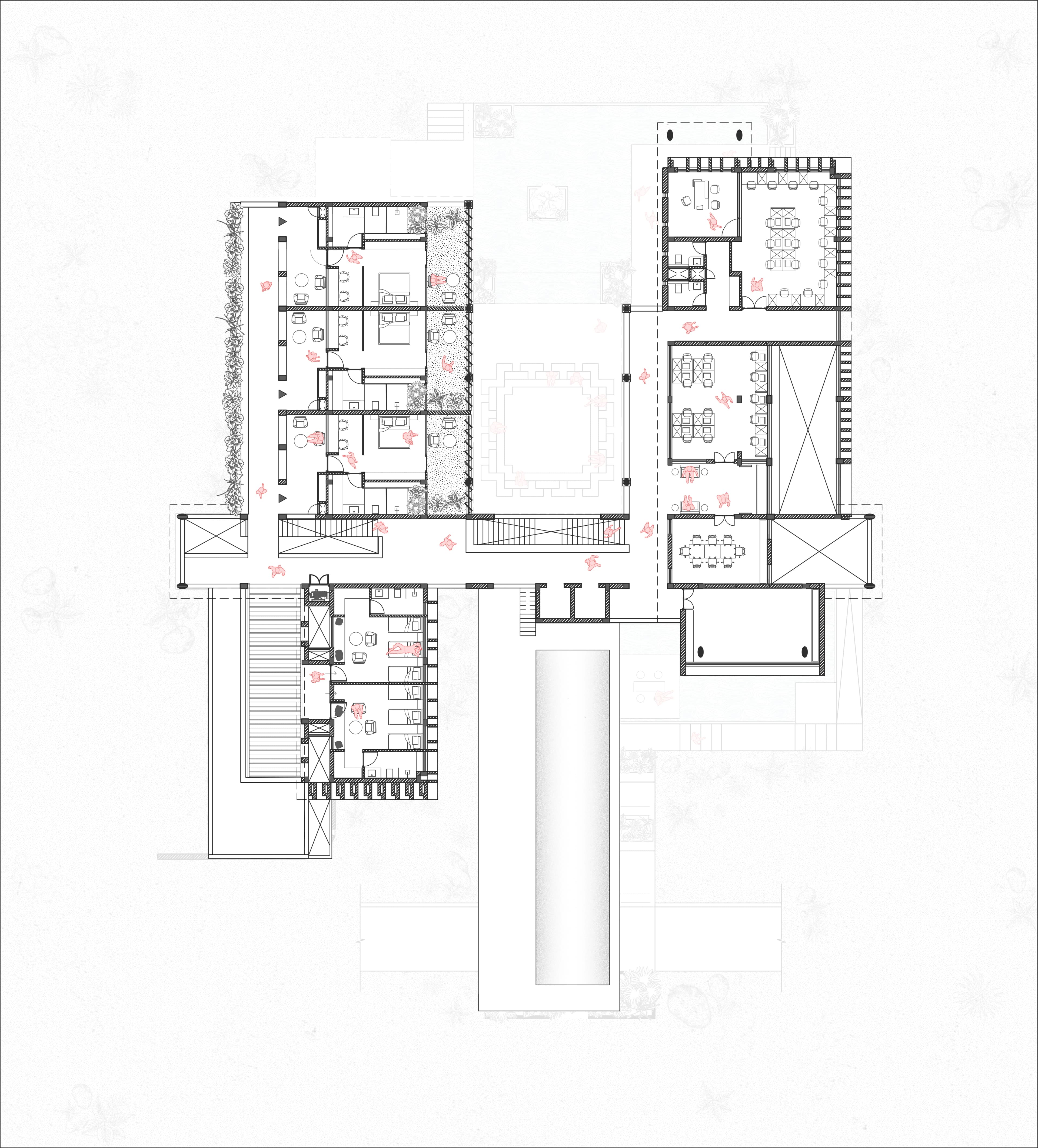
I Link Digital, a software and digital solutions company, approached Dustudio and Bayhauz Design Studio to design and build a new office campus for their teams. The project gave us an exciting opportunity: could an Indian aesthetic language shape the campus of a modern, technologically sophisticated company? Could earthen walls, reclaimed stone and wooden columns, terracotta roofs, and stone screens become the setting for a cutting-edge tech firm? We took up the challenge with both excitement and conviction. For too long, tech offices have relied on one-dimensional solutions: glass boxes with air-conditioned rooms and 'modern' interiors, or quirky, multi-coloured spaces meant to project a start-up vibe. Here, nestled within a remarkable green and forested site, we asked instead—could we bring forth aesthetics rooted in cultural heritage, elements drawn from history yet relevant to the future, as the backdrop for engineers and professionals to do their best work? The resulting master plan flows through a series of built and unbuilt spaces - courtyards, water bodies, and colonnades where architecture and landscape merge seamlessly.

Vaulted terracotta roofs sit upon concrete slabs, brick masonry shallow domes, and terracotta filler slabs. A grand entrance, flanked by stone pillars, welcomes visitors with an open invitation: not to shut out the elements, but to offer shelter within them. Inside, large open office spaces are balanced by concentrated work zones such as meeting and conference rooms. Each of these spaces spills out into airy corridors, encouraging chance encounters and collaborative discussions across departments. At the heart of the campus lies a central courtyard with an amphitheatre, inspired by Indian stepwells - a place for town hall gatherings, or simply evening chats and chai sessions.
Materiality grounds the campus. Rammed earth walls provide calm, textured surfaces that will age beautifully over time, becoming strong aesthetic features of the workspace. Water bodies weave throughout the site, bringing moments of tranquillity that make work not just a job, but a joyful and creative pursuit. The campus is envisioned in two phases. Phase one centres on the main office block, with its courtyards and water features. Phase two will extend the master plan with a larger walkway, colonnade, and additional work and support structures. Together, they form a workplace that aspires to prove that heritage, material honesty, and cultural rootedness have a rightful place in the architecture of modern technology.














